移动CT车(客车底盘)-显浩品质、冠军服务





车载CT技术参数:
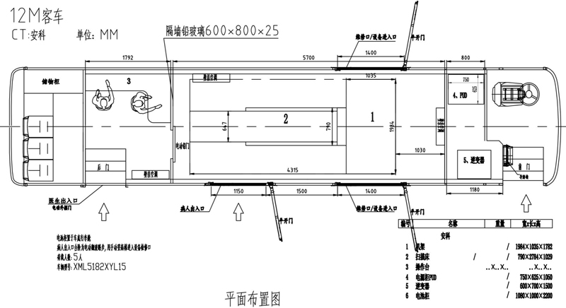
车型 XML5182XYL15
外型尺寸mm 12000×2550×3600
公告座位(人) 2-5
底盘配置
车身配置 承载式车身
电器配置
发动机
YC6L310-50
座椅
米黄色仿皮座椅
空调
非独立顶置式松芝空调(SZR-
V/F-D)28500-34400kcal/h
功率kW/rpm
228/2200
扭矩N.m/rpm
1150/1200-1700
行李仓
贯通式8.4m3,铺地板革
暖风
除霜器
离合器
国产Φ 430膜片弹簧
后视镜
手动
视听系统
MP3播放器
离合操纵形式
液压操纵
内饰
凯歌新款内饰(风尚版),无行李架
行车记录仪
GPS、平台管理
变速箱
法士特6DS100T
车载监控系统
无
变速操纵形式
远距离两软轴
内侧面
纤维板覆皮革
高位刹车灯
有
前桥
东风6.5T
侧窗
最后两侧窗为内置推拉,其余全封闭钢化
电/气喇叭
电喇叭
后桥
东风11T
阅读灯
有
行车制动
前盘后鼓双回路气压制动
外推式应急窗
无
空调雾化泵
无
驻车制动
储能弹簧驻车制动
自动破窗器
侧窗四个
倒车监视器
有
辅助制动
特尔佳2100N.M
司机窗
手动
仪表形式
威帝CAN总线
转向器
动力转向器
仪表台
凯歌新款仪表台
电子钟
有
电控制动系统
国产ABS
司机椅
绒布减震三向可调
调整臂
国产自动间隙
窗帘
半幅遮阳帘/全车窗帘
悬挂系统
10/12钢板悬挂
行李仓门
上掀式铝合金
轮胎
双钱295/80R22.5
天窗
两个(带换气扇)
油箱
260L
乘客门
前中气动外摆门,带遥控锁
安全带
伸缩式
护拦
喷塑管,无导游靠背
地板
灰色地板革
灭火装置
发动机舱自动灭火装置
以上仅供参考,详细参数以及设备配置请咨询公司业务员!
联系人:13922709440 余先生
固 话:86-020-86059537
服务热线:400-800-8232
邮 箱:xianhao266@163.com
公 司:广州市显浩医疗设备股份有限公司
广州总部地址:广州市黄埔区开源大道188号十三栋1301室
湖北公司地址:湖北省钟祥市经济开发区协企联盟园区C6、C7栋